Nel prossimo week end partiranno ufficialmente i lavori di restauro e manutenzione straordinaria di Palazzo delle Aquile, sede della Amministrazione comunale e del Consiglio comunale. Secondo il cronoprogramma dei lavori, il primo atto previsto sabato e domenica sarà l’avvio delle indagini strumentali sulle murature dell’edificio di piazza Pretoria, propedeutiche alla progettazione esecutiva delle strutture.
I lavori di restauro dureranno circa 4 anni e non prevedono mai la totale chiusura del Palazzo, grazie ad un cronoprogramma per fasi autonome che permetterà, di fatto, la parziale continuità della attività istituzionali, consentendo l’alternanza della presenza di almeno una delle funzioni isituzionali apicali (Sindaco e Consiglio comunale). I lavori sono stati assegnati all’A.T.I. Co.San.srl che nello scorso dicembre ha sottoscritto il contratto di esecuzione per un importo di poco inferiore ai sei milioni di euro oltre I.V.A., al netto del ribasso percentuale (27%) offerto sull’importo a base d’asta.
L’avvio dei lavori di restauro e di manutenzione straordinaria segue una lunga vicenda amministrativa e giudiziaria iniziata con l’indizione della gara nel 2017, la cui gestione era stata affidata all’UREGA. Dopo una prima aggiudicazione di agosto 2018, si sono susseguiti diversi ricorsi e controricorsi da parte di ditte escluse, con conseguenti passaggi presso la Giustizia Amministrativa ed anche la richiesta di pareri all’ANAC. Solo il 20 settembre 2020, a tre anni dall’avvio della procedura, una definitiva sentenza del Consiglio di Giustizia Amministrativa ha permesso di procedere alla stipula del contratto.
Il contratto consiste in un Accordo Quadro basato su un progetto definitivo; ciò significa che i lavori saranno eseguiti sulla base di singoli progetti esecutivi (per ciascuna delle fasi) e altrettanti sub-contratti con la medesima ATI aggiudicataria. I lavori, che saranno ovviamente svolti sotto l’egida della Soprintendenza per i Bb.Cc. in considerazione del valore storico e artistico dell’edificio, interesseranno prioritariamente l’adeguamento della struttura alle vigenti normative in materia di sicurezza dei luoghi di lavoro, oltre alla conservazione della facies architettonica e degli apparati decorativi, dotando il Palazzo di nuovi impianti tecnologici e servizi, intervenendo anche per l’eliminazione di una serie di elementi che ne deturpano l’aspetto originario a seguito di interventi di piccola manutenzione susseguiti nel corso degli ultimi 50 anni. Verrà inoltre effettuata la verifica e il miglioramento delle strutture, con un intervento sui percorsi di mobilità interna sia per l’abbattimento delle barriere architettoniche sia per la sicurezza delle vie di fuga. Si interverrà ovviamente anche sul restauro delle parti decorate. Le modifiche distributive e architettoniche sono state elaborate con particolare riferimento ad alcune esigenze prioritarie, ovvero alla razionalizzazione dei percorsi interni e ad una migliore funzionalità e dei percorsi di esodo in caso di emergenza.
“Palazzo delle Aquile – ha detto il sindaco Leoluca Orlando – è una delle grandi ricchezze della nostra città. Questo intervento di restauro restituirà il palazzo nella sua straordinaria bellezza alla cittadinanza e a tutti i turisti, mettendolo in sicurezza ed esaltando le sue bellezze che si sono stratificate nel corso dei secoli. Ma anche eliminando le anomalie, le criticità in termini artistici. Anche questo è un modo di costruire il futuro di Palermo. Ringrazio tutti i tecnici comunali dell’Ufficio del Centro Storico del Comune di Palermo per il lavoro che ha permesso di raggiungere questo importante risultato e ringrazio, inoltre, la Sovrintendenza dei Beni Culturali. Il cammino è stato ostacolato da lungaggini, ritardi, ricorsi e impugnative. Ora possiamo dire che la missione è compiuta, bisogna completarla”.
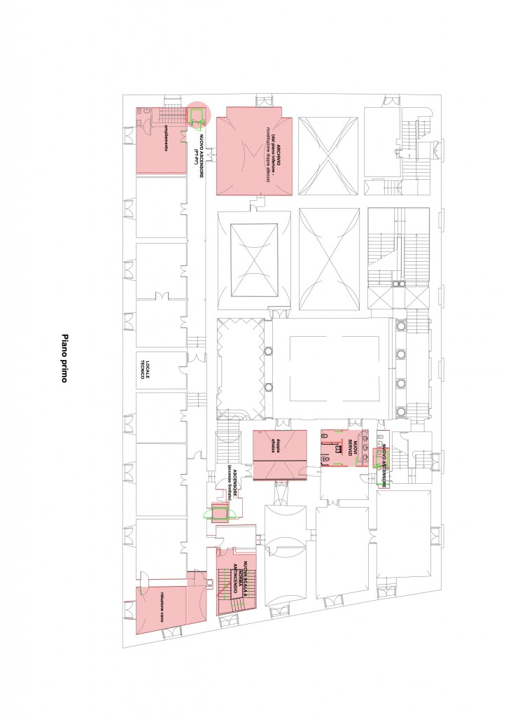
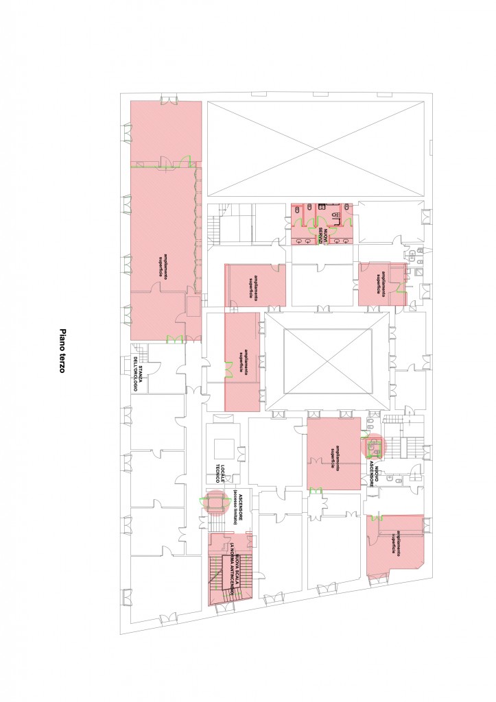
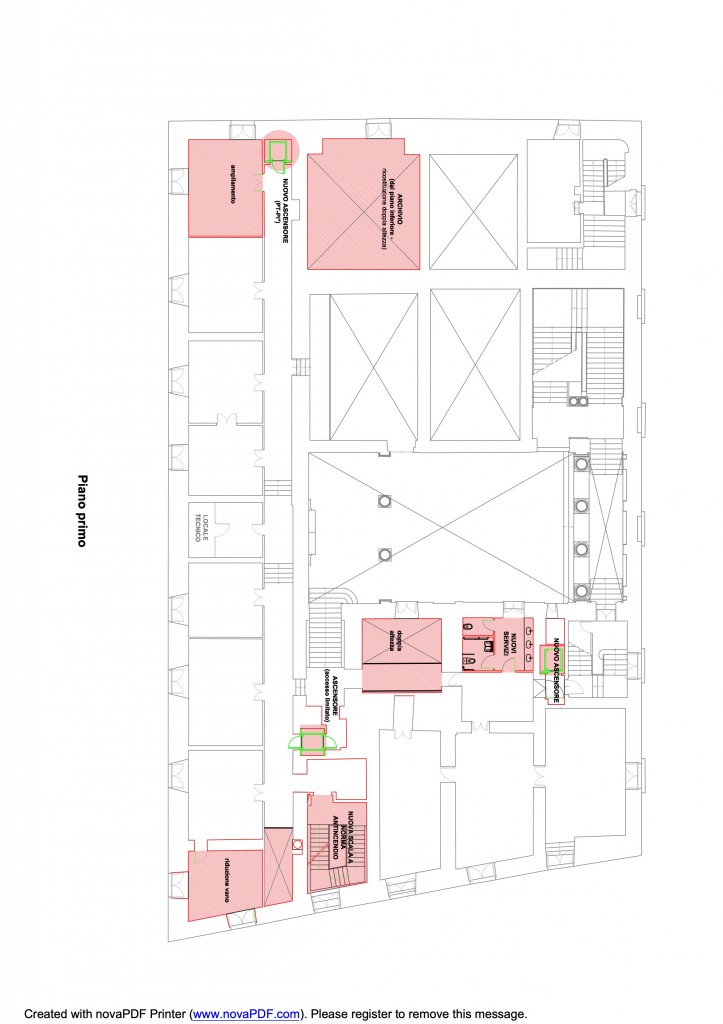
Lavori nel dettaglio:
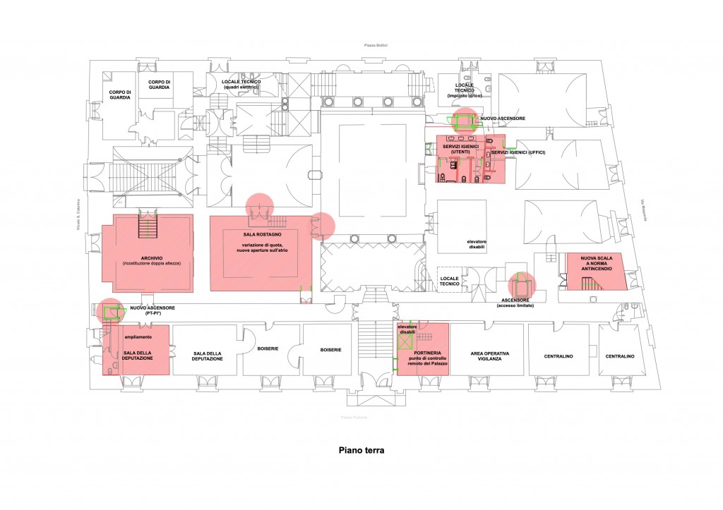
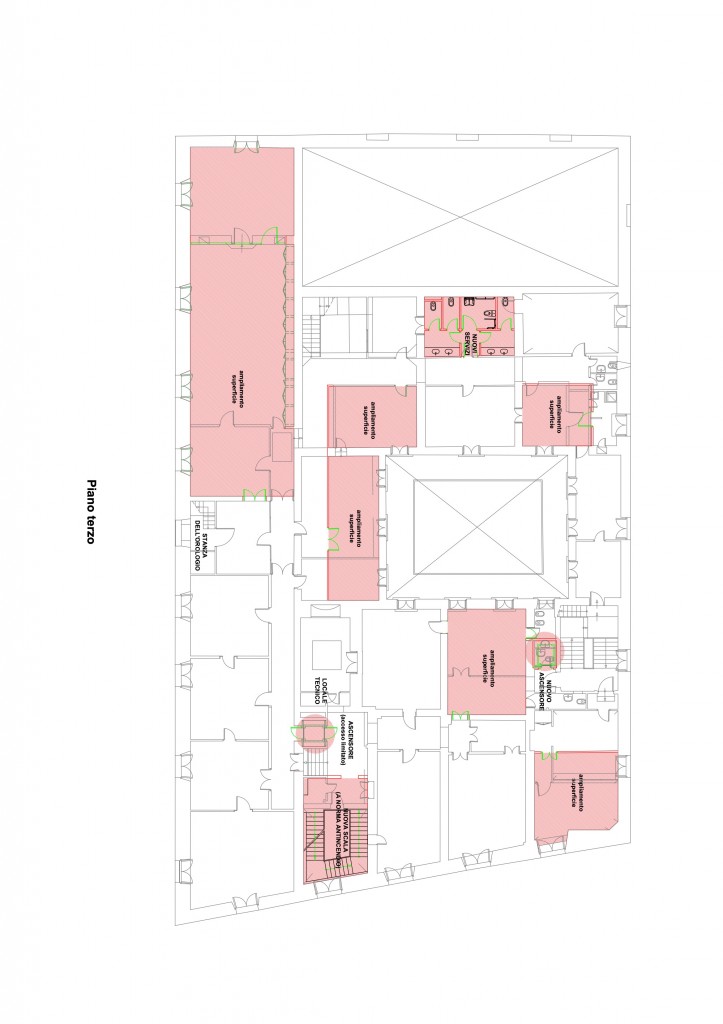
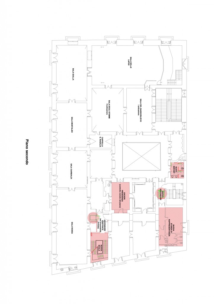
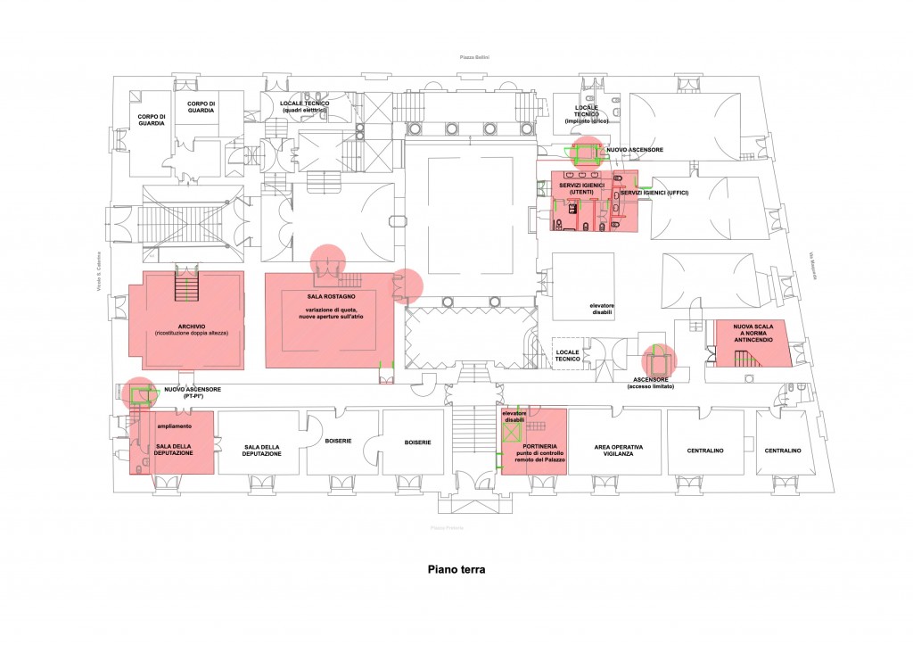
Nelle tavole allegate (PdA – Highlights da P1 a P5 sul rilievo e sul progetto) sono posti in evidenza, per ogni piano, i punti principali in cui si interverrà: inserimento di una nuova scala per tutta l’altezza dell’edificio (lato Maqueda), prolungamento di una rampa della scala esistente lato Bellini, inserimento di ascensori, demolizioni di superfetazioni incongrue (sopraelevazione su vicolo S. Caterina), restauro dell’apparato decorativo, completo rifacimento a norma degli impianti elettrico, idrico, antincendio, di climatizzazione e rete dati, restauro e/o sostituzione degli infissi interni ed esterni con la sostituzione di tutti i vetri con vetri di sicurezza, riconfigurazione delle coperture, rimozione degli scranni in Sala delle Lapidi e messa in luce della pavimentazione a marmi mischi, realizzazione di riserva idrica antincendio, risanamento e recupero del rifugio antiaereo con l’eventuale riapertura degli accessi dalla scalinata di Piazza Pretoria (lato Maqueda), risanamento dell’umidità di risalita nelle murature, demolizione di solai, restauro del lucernario e sostituzione delle specchiature con vetri di sicurezza.
L’intervento sarà eseguito in due macroaree, A e B una per ogni metà dell’edificio, prima quella dal lato del vicolo di S. Caterina, che comprenderà quindi Sala delle Lapidi e gli uffici del Consiglio Comunale e poi quella dal lato di via Maqueda, che comprenderà la Segreteria Generale e gli uffici del Sindaco.
I lavori nelle due macroaree saranno precedute da una Fase 0, di incantieramento, che si prevede potrà essere avviata entro la prossima estate, in cui si procederà alla rimozione ed al conferimento a discarica di tutto ciò che può essere rimosso agendo dall’esterno (ad esempio in copertura, le canalizzazioni, i macchinari e i serbatoi), all’avvio dei restauri in zone non utilizzate, alla realizzazione dell’indiana attorno all’edificio per il risanamento dell’umidità da risalita, all’esecuzione dei serbatoi per la riserva idrica antincendio, al recupero del rifugio antiaereo e dei locali di accesso in prossimità della portineria.
Si prevede che i lavori della Fase 0 avranno una durata di 12 mesi, mentre i lavori della Macroarea A (Sala delle Lapidi) saranno avviati entro l’anno corrente e avranno una durata di 24 mesi. In ognuna delle macroaree dovrà eseguirsi lo sgombero di persone e cose e la completa liberazione degli spazi in cui si interverrà.
Per quanto riguarda lo sgombero delle suppellettili e degli arredi di valore storico, di cui è già stata avviata la catalogazione, si sono individuate l’aula Rostagno e quella adiacente, del futuro archivio, come deposito temporaneo, mentre un altro sito potrebbe essere rappresentato dalla GAM, in cui conferire gli oggetti e allestire una mostra temporanea sui beni del Palazzo.

























